Une entreprise familiale au service des entreprises et collectivités depuis plus de 50 ans
appelez-nous au 02 40 98 02 28
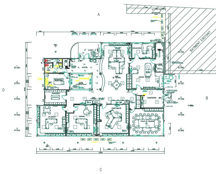
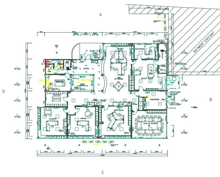
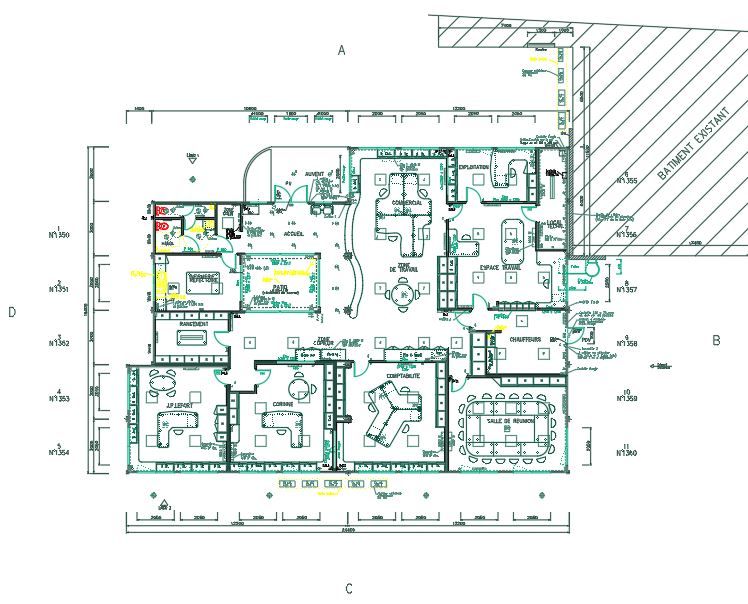
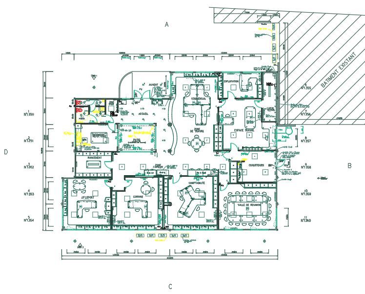
BUREAU MODULAIRE COLLECTIVITÉ
COURANT CONSTRUCTEUR réalise des bureaux modulaires pour les collectivités. Votre modulaire est entièrement préfabriqué et équipé sur demande en usine.
Votre construction modulaire sera personnalisée selon votre souhait.
Le bureau modulaire est installé rapidement sur votre site par nos techniciens, elle sera facilement modifiable et extensible pour s'adapter à votre évolution.
Nos bureaux sontpréfabriqués dans nos ateliers et peuvent être habillés et agencé d'une multitude de façons. Nos constructions modulaires offrent un accueil et un environnement confortable pour votre personnel.
Un devis pour un bureau modulaire, veuillez compléter notre formulaire ou appelez-nous au 02 40 98 02 28 pour plus d'informations.
Construction modulaire
Courant Connstructeur est spécialisé dans la fabrication et l’aménagement de bâtiments modulaires à destination des entreprises et des collectivités.
Informations légales
Copyright courant-constructeur.com
Tous droits réservés
Réalisation site web : Griff Print
Crédit photos vidéos Entreprise Courant SA
Hébergement OVH Roubaix
Utilisation des cookies
Pour vous assurer une expérience réussie,
ce site utilise des cookies et des traceurs
Google Analytics à des fins statistiques.
Réseaux sociaux
Pour suivre l'actualité de Courant Container,
n'hésitez pas à nous suivre sur les réseaux sociaux :
.jpg?t=6b78e88b_f82adbb2)

