Une entreprise familiale au service des entreprises et collectivités depuis plus de 50 ans
appelez-nous au 02 40 98 02 28
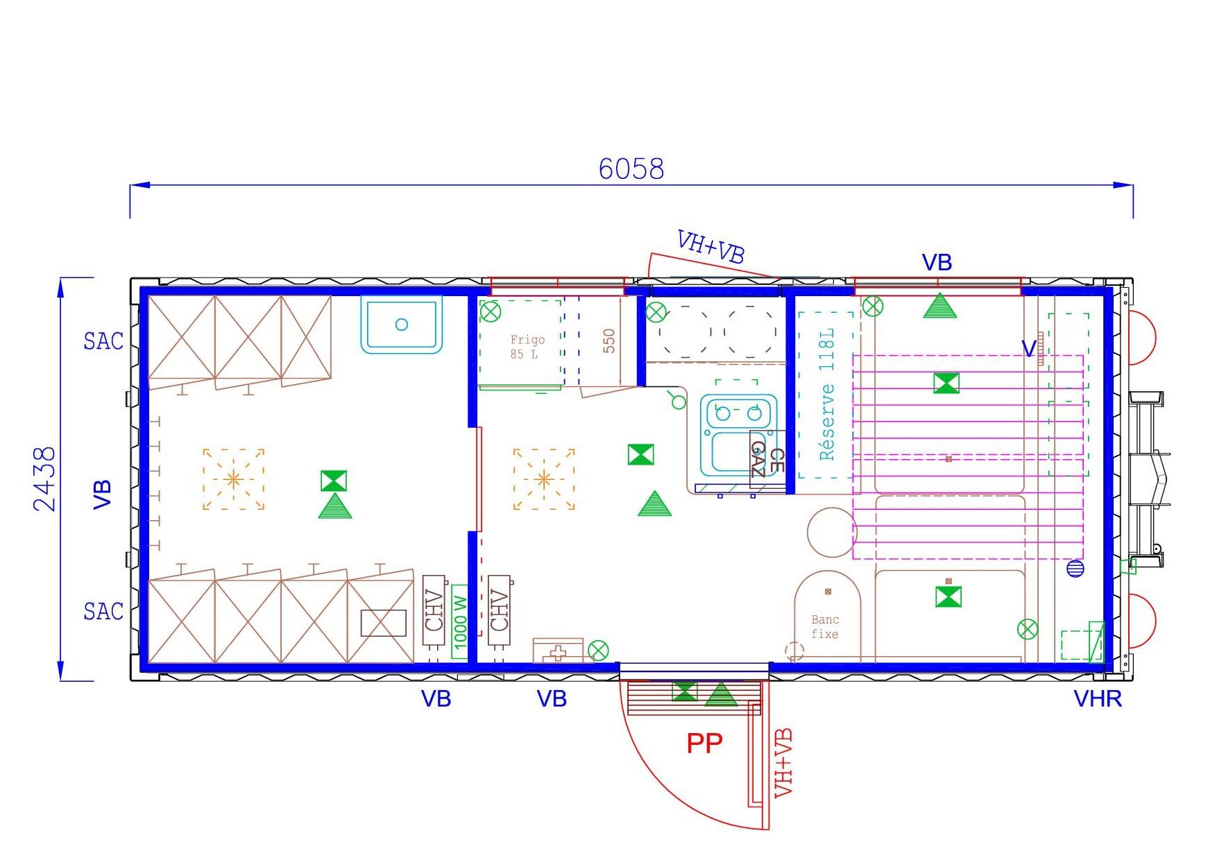
Container maritime aménagé
Expert de l'aménagement de container maritime
Courant Constructeur est le spécialiste de la tranformation et de l'aménagement de container maritime neuf et d'occasion. Le conteneur pourra être transformé en base-vie de chantier pour une affectation de réfectoire ou de bureau de chantier. Le conteneur sera équipé à la demande du client en vestiaires, d'un espace cuisine, d'un espace déjeuner et de détente, de sanitaires et comprenant tout le mobilier adapté aux différents espaces. Monté sur berce le container pourra être facilement transporté sur tous vos chantiers
Vous recherchez une entreprise pour un aménagement de container maritime ?
COURANT CONSTRUCTEUR est spécialisé dans l'aménagement et la transformation de container maritime.
Professionnel du conteneur pour les métiers du BTP depuis 1983, nous développons selon vos besoins un espace de vie (bureau, réfectoire, sanitaire), ou de travail (atelier) avec des éléments de qualité.
Proposez-nous votre cahier des charges pour la réalisation de votre bureau ou atelier mobile, nous l’adapterons à votre besoin !
Votre conteneur maritime est aménagé et tranformé dans nos ateliers en Loire Atlantique.
La qualité de notre travail vous garantit une durée de vie optimum pour votre structure.
La robustesse d'un conteneur entraîne une sécurité maximum sans nuire à la haute qualité des équipements de nos bases-vie de chantier fixes ou mobiles sur berce.
Quelles sont les avantages d'un container maritime aménagé ?
Pour vos chantier le conteneur maritime reconditionné est une base vie parfaite pour vos équipes :
> tous les besoins en espace de vie : base vie de chantier, bureau de chantier, réfectoire de chantier, vestiaire de chantier, sanitaire de chantier.
> toute la sécurité dû à sa construction en acier.
> sa facilité de transport.
> son aménagement sur berce permet une manutention réduite et autonome, économisant appareil de levage à acheminer sur le chantier.
Un devis pour un container maritime aménagé, veuillez compléter notre formulaire ou appelez-nous au 02 40 98 02 28 pour plus d'informations.
Réalisations de conteneurs aménagés
Construction modulaire
Courant Connstructeur est spécialisé dans la fabrication et l’aménagement de bâtiments modulaires à destination des entreprises et des collectivités.
Informations légales
Copyright courant-constructeur.com
Tous droits réservés
Réalisation site web : Griff Print
Crédit photos vidéos Entreprise Courant SA
Hébergement OVH Roubaix
Utilisation des cookies
Pour vous assurer une expérience réussie,
ce site utilise des cookies et des traceurs
Google Analytics à des fins statistiques.
Réseaux sociaux
Pour suivre l'actualité de Courant Container,
n'hésitez pas à nous suivre sur les réseaux sociaux :

