Une entreprise familiale au service des entreprises et collectivités depuis plus de 50 ans
appelez-nous au 02 40 98 02 28
CLUB HOUSE - SALLE POLYVALENTE
Pour votre club house ou salle polyvalente, choisissez une construction modulaire COURANT CONSTRUCTEUR.
Entièrement préfabriqué en usine, elle saura s'intégrer dans votre environnement grâce à une solution architecturée optionnelle.
Réalisé et équipé sur mesure, votre club house modulaire répondra à vos impératifs.
Un devis pour un club house ou une salle polyvalente,
veuillez compléter notre formulaire
ou appelez-nous au 02 40 98 02 28 pour plus d'informations.
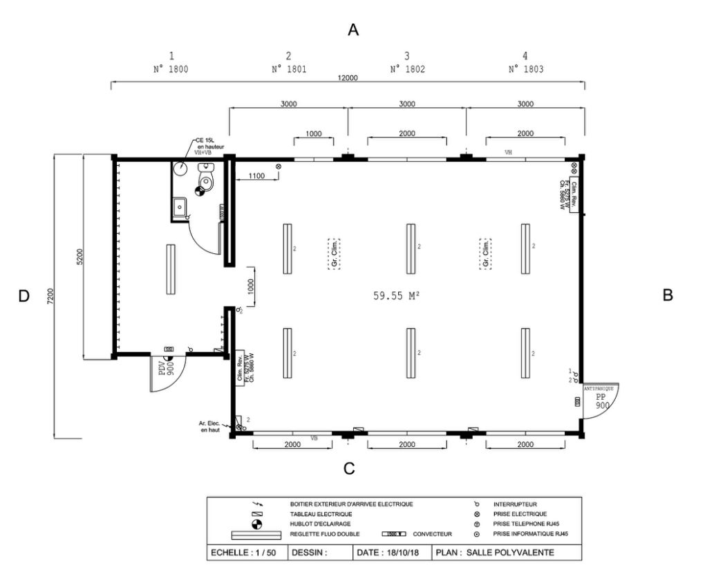
Cette "salle polyvalente" de 80m² hors tout bénéficie d'un classement feu "ERP5".
Il s'agit d'une salle de démonstration visible sur notre parc à SAINT HERBLON (près d'ANCENIS 44).
Ces modules n'ont jamais été mis en service et sont en très bon état.
Notre gamme LUXMODUL est un "haut de gamme". Elle bénéficie d'un classement thermique "RT 2005" (admissible pour les salles polyvalentes).
Caractéristiques principales :
- sur isolation du plancher 55mm sur tole inférieure de protection +100mm entre traverses.
- parois extérieures en panneaux "sandwich" de 100mm en laine de roche (feu M0).
- plafond deux couches de laine de roche croisées de 75mm (pour éviter les ponts thermiques).
Cet ensemble est équipé de climatiseurs réversibles, ce qui assure un mode de chauffage et de rafraichissement efficace.
Le plafond est équipé de dalles acoustiques (feu M0) bien adaptées aux exigences d'une utilisation en salle polyvalente.
Le sol est en dalles qualité U3P3 posées en deux couleurs (jaune et bleu) ce qui
rend l'ensemble agréable et ésthétique.
Le sas / vestiaire d'entrée permet l'accueil des personnes et le stockage des vêtements. Il comporte un WC avec lavabo eau froide / eau chaude.
Construction modulaire
Courant Connstructeur est spécialisé dans la fabrication et l’aménagement de bâtiments modulaires à destination des entreprises et des collectivités.
Informations légales
Copyright courant-constructeur.com
Tous droits réservés
Réalisation site web : Griff Print
Crédit photos vidéos Entreprise Courant SA
Hébergement OVH Roubaix
Utilisation des cookies
Pour vous assurer une expérience réussie,
ce site utilise des cookies et des traceurs
Google Analytics à des fins statistiques.
Réseaux sociaux
Pour suivre l'actualité de Courant Container,
n'hésitez pas à nous suivre sur les réseaux sociaux :
.jpg?t=4dfcfab1_f852d558)
.jpg?t=4dfcfab1_f852d558)
.jpg?t=4dfcfab1_f852d558)
.jpg?t=4dfcfab1_f852d558)
.jpg?t=4dfcfab1_f852d558)
.jpg?t=4dfcfab1_f852d558)
.jpg?t=4dfcfab1_f852d558)